Radar Veneza

Portuguese Architects at the Biennale 1975-2021

Radar Veneza: Portuguese Archhitects at the Biennale 1975-2021 presents a reflective journey on the Portuguese participation in the Venice Biennale from 1975 until the present. Offering a critical analysis on the multiple ways in which democratic Portugal has presented itself abroad, this publication aims to look at the Portuguese presence through an external view, looking at the Biennale's invitations to architects, studios and artists, the general context of each Biennale and the specific circumstances of each national representation.
Alexandra Areia 
Joaquim Moreno
(from the exhibition's catalogue)

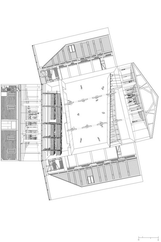
Through a thorough research endeavour of almost two years, this work's outcome is a series of drawings representing at a same scale (1:15) and using similar representation codes.
The aim was to turn drawings into immersive and comprehensive display objects.
They were assembled in the Developed Surface method on custom steel frames designed by Barbas Lopes Arquitectos.

Curators: Alexandra Areia and Joaquim Moreno 
Visual Research: Ivo Poças Martins
Curatorial and Research Assistant: Rita Sampaio
Exhibition Design: Barbas Lopes Arquitectos

Casa da Arquitectura, May 2021 - January 2022

All drawing by Ivo Poças Martins assisted by Rita Sampaio
(above, poster from the exhibition catalogue w/ all objects at the same scale)

Exhibition photography by Ivo Tavares Studio

Mobirise
Mobirise
Mobirise
Mobirise
Mobirise
Mobirise
Mobirise
Mobirise
Mobirise
Mobirise
Mobirise
Mobirise
Mobirise
Mobirise
Mobirise
Mobirise
Mobirise
Mobirise

AI Website Creator